行业关键字
建筑与环境建筑作品欣赏 → 正文
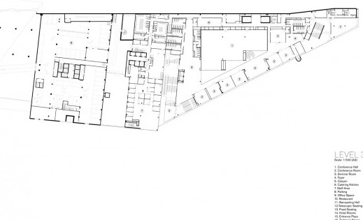
瑞典斯德哥尔摩滨海建筑
作者: White arkitekter ab 来源: 视觉同盟 时间: 2011年4月19日

    这个项目包括三个单独的建筑,它们分别是一个会议和音乐厅,它离海边最近;一个办公大楼,一个含有400个房间的酒店,这个酒店直接和会议大楼相连。但是要想在这个三角形的场地内设计一个含有3000个座位的会议厅和2000个座位的餐厅,还是不那么现实。设计师的策略是可拆卸座椅,这样一来空间就有了双重功用;另外将会议厅的一大部分悬空,超出场地范围,形成入口顶部的一个巨大盖顶。这两个计策成功应对了难题,还为斯德哥尔摩描画出了独特的城市天际线。

(责任编辑: chenqian

作品欣赏

欢迎关注视觉同盟微信公众号:
微信公众平台:搜索“vudn2004”或扫描下面二维码:
English | 关于我们 | 站点地图 | 联系热线 | 合作伙伴 | 艺术顾问 | 订阅 | 手机版
版权所有 © 2004-2026 视觉同盟 visionUnion.com)
Copyright © 2004-2026 VisionUnion.com Incorporated. All rights reserved
京ICP备09005192号
视觉同盟旗下子站:品牌专区 | 创意设计人才网 | 视觉同盟社区 | 视觉同盟论坛 | 英文版