行业关键字
建筑与环境建筑作品欣赏 → 正文
奥地利高科技园区获胜方案
作者: Bramberger 来源: 视觉同盟 时间: 2013年12月30日

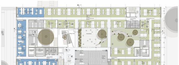
  奥地利Bramberger建筑师赢得在Villach的高新技术中心设计的国际竞争。该方案提出了四个建筑块,和一个相应的地区专用的开放空间,由一个主轴纵向铰接。这个轴,命名为“通信长廊”作为建筑的关系以及中央的路线,在未来,它是连接周围的建筑物,促进必要的基础设施进行调查校园创作结构。
  建筑物的棋状分布使得内部和外部空间之间的视觉关系的多重性。建筑的功能分布在考虑他们和专用的外部空间的联系之间的最小距离,创造最佳的工作空间。

(责任编辑: chenqian

作品欣赏

欢迎关注视觉同盟微信公众号:
微信公众平台:搜索“vudn2004”或扫描下面二维码:
English | 关于我们 | 站点地图 | 联系热线 | 合作伙伴 | 艺术顾问 | 订阅 | 手机版
版权所有 © 2004-2026 视觉同盟 visionUnion.com)
Copyright © 2004-2026 VisionUnion.com Incorporated. All rights reserved
京ICP备09005192号
视觉同盟旗下子站:品牌专区 | 创意设计人才网 | 视觉同盟社区 | 视觉同盟论坛 | 英文版