行业关键字
建筑与环境建筑作品欣赏 → 正文
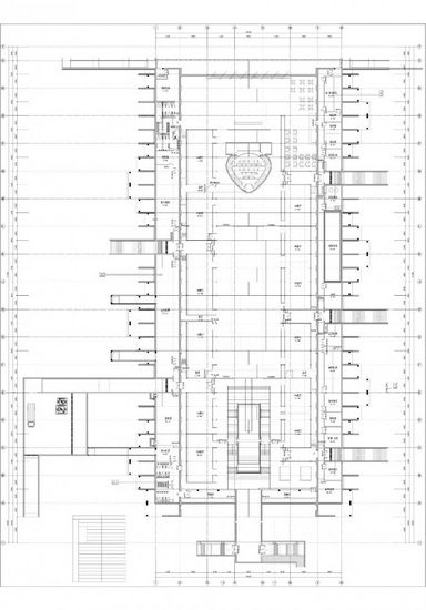
山西大同云冈石窟博物馆
作者: 程大鹏 来源: 视觉同盟 时间: 2012年7月18日

  该项目是由建筑师程大鹏主持设计的大同云冈石窟博物馆,位于大同市云冈石窟景区内西侧,风貌保护区范围内,是整个云冈石窟景区改造的子项之一。建设用地位于景区的西南部,北面为北魏石窟,东侧为绿化带,南侧为总建筑面积9939.46平方米,包含一个陈列馆、一个多功能的演艺中心(原古城遗址上复原)。博物馆以宽4米,跨度40米为一个单元的拱形交错排列而成。陈列馆为单层大跨度空间,地下6米,地面以上最高点标高5.8米.南面演艺中心为在原古城遗址上复原。地下一层,层高3.6米,地上一层檐口标高7.0米。

(责任编辑: chenqian

作品欣赏

欢迎关注视觉同盟微信公众号:
微信公众平台:搜索“vudn2004”或扫描下面二维码:
English | 关于我们 | 站点地图 | 联系热线 | 合作伙伴 | 艺术顾问 | 订阅 | 手机版
版权所有 © 2004-2026 视觉同盟 visionUnion.com)
Copyright © 2004-2026 VisionUnion.com Incorporated. All rights reserved
京ICP备09005192号
视觉同盟旗下子站:品牌专区 | 创意设计人才网 | 视觉同盟社区 | 视觉同盟论坛 | 英文版