行业关键字
建筑与环境建筑作品欣赏 → 正文
捷克斯崔巴纳•斯卡利采住宅
作者: Prodesi | Domesi 来源: 视觉同盟 时间: 2011年12月19日

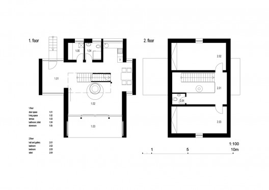
  这个木质的低能耗的住宅有一个主要的大面积的顶部地板,它位于远离布拉格的一个郊区内部。顶部地面将首层大部分都覆盖,形成一种自然的遮阳和公共活动空间。首层向着西南打开巨大的窗户和法式门,与此相反,东北部分与邻里的住宅相连,这一部分则较为保守,以保留隐私。室内重要的部分是暴露的走廊空间,它漂浮在餐厅之上,使低层的空间能够伸入顶层,形成干净的开阔的大厅。

(责任编辑: chenqian

作品欣赏

欢迎关注视觉同盟微信公众号:
微信公众平台:搜索“vudn2004”或扫描下面二维码:
English | 关于我们 | 站点地图 | 联系热线 | 合作伙伴 | 艺术顾问 | 订阅 | 手机版
版权所有 © 2004-2026 视觉同盟 visionUnion.com)
Copyright © 2004-2026 VisionUnion.com Incorporated. All rights reserved
京ICP备09005192号
视觉同盟旗下子站:品牌专区 | 创意设计人才网 | 视觉同盟社区 | 视觉同盟论坛 | 英文版