行业关键字
建筑与环境建筑作品欣赏 → 正文
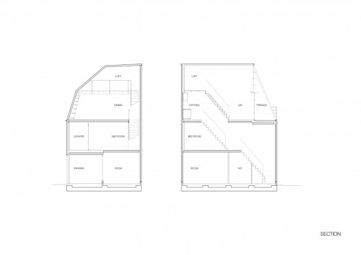
日本东京三岛住宅
作者: Keiji Ashizawa Design 来源: 视觉同盟 时间: 2011年10月12日

  这个住宅的设计主题非常适合这么一个小巧的家庭,设计背后的想法是包含隐私,同时为住户在拥挤的城市中心区提供舒适的环境,房间最大可能地提供隐私,例如卧室和浴室,它们分别位于住宅的首层和二层。起居和厨房位于三层,书房在最上面的阁楼。这些房间的布置都是为了最大限度地利用太阳光线,三层有很高的天花板,它们使南侧窗户能透入很多的自然光线。

(责任编辑: chenqian

作品欣赏

欢迎关注视觉同盟微信公众号:
微信公众平台:搜索“vudn2004”或扫描下面二维码:
English | 关于我们 | 站点地图 | 联系热线 | 合作伙伴 | 艺术顾问 | 订阅 | 手机版
版权所有 © 2004-2026 视觉同盟 visionUnion.com)
Copyright © 2004-2026 VisionUnion.com Incorporated. All rights reserved
京ICP备09005192号
视觉同盟旗下子站:品牌专区 | 创意设计人才网 | 视觉同盟社区 | 视觉同盟论坛 | 英文版