行业关键字
建筑与环境建筑作品欣赏 → 正文
新加坡潜望镜办公室
作者: VW+BS 来源: 视觉同盟 时间: 2011年8月10日

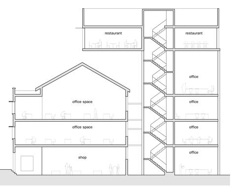
  这是由伦敦工作室设计的一个位于新加坡的办公楼,它有着独特的造型,如同一个巨大的潜望镜。建筑蜷缩在一个十九世纪的店屋后面,它呈现出一个巨大的悬臂结构,漂浮于已有的楼顶结构之上。悬臂包含一个顶层的餐厅,下面是四层的办公室,建筑由加固混凝土建成,前后表皮包含穿孔的铝制板面。一个两米宽的空隙将店屋与扩建部分分开,这个店屋也会被改造并为一二层提供办公空间。项目目前还在等待当地规划部门的审核和认可。

(责任编辑: chenqian

作品欣赏

欢迎关注视觉同盟微信公众号:
微信公众平台:搜索“vudn2004”或扫描下面二维码:
English | 关于我们 | 站点地图 | 联系热线 | 合作伙伴 | 艺术顾问 | 订阅 | 手机版
版权所有 © 2004-2025 视觉同盟 visionUnion.com)
Copyright © 2004-2025 VisionUnion.com Incorporated. All rights reserved
京ICP备09005192号
视觉同盟旗下子站:品牌专区 | 创意设计人才网 | 视觉同盟社区 | 视觉同盟论坛 | 英文版