行业关键字
建筑与环境建筑作品欣赏 → 正文
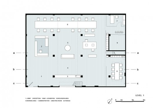
上海XL+办公空间
作者: Great City & Architecture 来源: 视觉同盟 时间: 2011年7月8日

     作为一个产品设计品牌,XL+喜欢非常有意思,非常高品质的同时有着历史元素的办公空间。因此他们选择了一个建于20世纪30年代的老仓房作为办公空间,并委任GC&A为他们设计室内空间。设计重点是漂浮空间,整个办公空间是一个平平的方形结构,阳光通过天窗进入。设计师对公司人员工作特征和状态进行了全面研究,在设计中突出团队协作,讨论和演示等活动,同时创造出一系列带有不同功能的漂浮空间。漂浮空间促进了工作空间,讨论空间和展示空间之间的互动和交流。


(责任编辑: chenqian

作品欣赏

欢迎关注视觉同盟微信公众号:
微信公众平台:搜索“vudn2004”或扫描下面二维码:
English | 关于我们 | 站点地图 | 联系热线 | 合作伙伴 | 艺术顾问 | 订阅 | 手机版
版权所有 © 2004-2026 视觉同盟 visionUnion.com)
Copyright © 2004-2026 VisionUnion.com Incorporated. All rights reserved
京ICP备09005192号
视觉同盟旗下子站:品牌专区 | 创意设计人才网 | 视觉同盟社区 | 视觉同盟论坛 | 英文版