行业关键字
建筑与环境建筑作品欣赏 → 正文
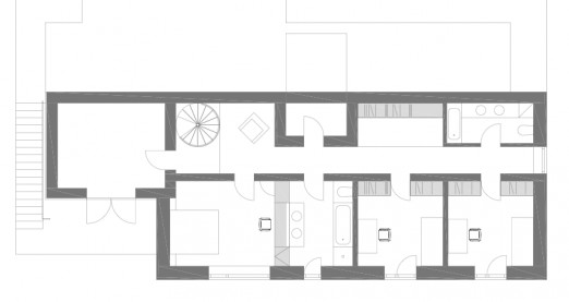
捷克Všeradice家庭住宅
作者: studio pha 来源: 视觉同盟 时间: 2011年6月2日

    住宅设计的灵感来源于传统的乡土建筑,但是在此基础上去掉可居住的阁楼空间,也不在阁楼外面设置窗户。起居空间在卧室区之上,占据了整个阁楼空间,设计没有采用任何临时装设板,而是全部依靠钢铁梁柱。同时,室外的斜坡将住宅分为两个部分:坚实的石头底座上面漂浮着轻质的木质结构,尖尖的屋顶呈45度的倾斜角。

(责任编辑: chenqian

作品欣赏

欢迎关注视觉同盟微信公众号:
微信公众平台:搜索“vudn2004”或扫描下面二维码:
English | 关于我们 | 站点地图 | 联系热线 | 合作伙伴 | 艺术顾问 | 订阅 | 手机版
版权所有 © 2004-2026 视觉同盟 visionUnion.com)
Copyright © 2004-2026 VisionUnion.com Incorporated. All rights reserved
京ICP备09005192号
视觉同盟旗下子站:品牌专区 | 创意设计人才网 | 视觉同盟社区 | 视觉同盟论坛 | 英文版