行业关键字
建筑与环境建筑作品欣赏 → 正文
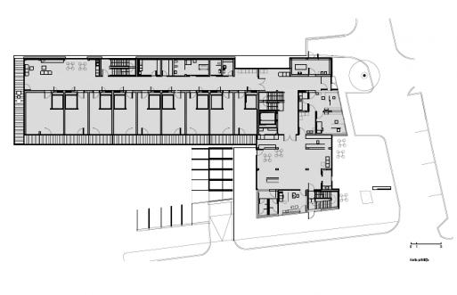
斯洛文尼亚Hodoš老年中心
作者: Ravnikar Potokar Arhitekturni 来源: 视觉同盟 时间: 2011年5月12日

    Hodoš老年中心位于Hodoš镇子的中心,连同学校,政府大楼一起形成社区活动系统,除了普通的为老人准备的房间,它还包括为其他人准备的公共空间。设计呈现出清晰的L形体量,首层是红砖色,与周围红色的屋顶相得益彰,营造出现代的气氛。

(责任编辑: chenqian

作品欣赏

欢迎关注视觉同盟微信公众号:
微信公众平台:搜索“vudn2004”或扫描下面二维码:
English | 关于我们 | 站点地图 | 联系热线 | 合作伙伴 | 艺术顾问 | 订阅 | 手机版
版权所有 © 2004-2026 视觉同盟 visionUnion.com)
Copyright © 2004-2026 VisionUnion.com Incorporated. All rights reserved
京ICP备09005192号
视觉同盟旗下子站:品牌专区 | 创意设计人才网 | 视觉同盟社区 | 视觉同盟论坛 | 英文版