行业关键字
建筑与环境建筑作品欣赏 → 正文
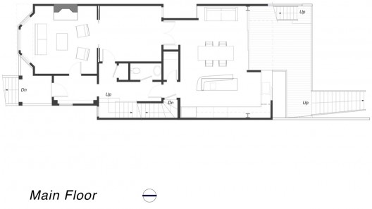
美国旧金山阿尔瓦拉多住宅
作者: Terry & Terry Architecture 来源: 视觉同盟 时间: 2011年4月28日

    设计师保留了一丝原有的维多利亚式风格,包括分隔的前面房间,宽阔的包含有楼梯及浴室的门厅,门厅将人们引入厨房。当人们来到住宅后面时,维多利亚风格慢慢消失。新的结构呈现出一系列断开的,多功能的开阔空间,这里是厨房,就餐区及起居室。设计师在三楼增加了一个卧室(浴室),一个巨大的楼梯间,楼顶打开使光线深入住宅内部。

(责任编辑: chenqian

作品欣赏

欢迎关注视觉同盟微信公众号:
微信公众平台:搜索“vudn2004”或扫描下面二维码:
English | 关于我们 | 站点地图 | 联系热线 | 合作伙伴 | 艺术顾问 | 订阅 | 手机版
版权所有 © 2004-2026 视觉同盟 visionUnion.com)
Copyright © 2004-2026 VisionUnion.com Incorporated. All rights reserved
京ICP备09005192号
视觉同盟旗下子站:品牌专区 | 创意设计人才网 | 视觉同盟社区 | 视觉同盟论坛 | 英文版