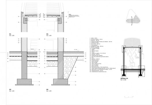
e|348 arquitectura事务所是在2009年被委任修建这座教堂的,场地是一个小小的三角形的场地,位于葡萄牙的Santa Maria da Feira。教堂所在的位置是五条街道的交叉口,在一个不断上升的地势的角落处。这个场地环境是庆祝Santa Ana节日完美的舞台,大剧院似的场地使室外空间可以得到有利利用,汇聚众多信徒。