行业关键字
建筑与环境建筑作品欣赏 → 正文
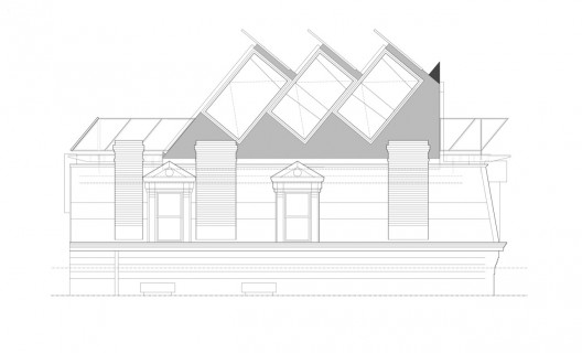
美国匹兹堡城市屋顶生物住宅
作者: studio d’ARC 来源: 视觉同盟 时间: 2011年1月14日

    这个看似奇怪的结构位于一个19世纪建筑的顶部,它是对一个1978年楼顶温室的翻修和重建。新的结构既充当一个花园也是一个具有室内和室外露台空间的房间。房子的设计有点像俄罗斯的套娃,结构一个套一个,主要的支撑结构在室内,它是用冷杉做成,外部的包裹则是用标准木材建造,加以玻璃和镀铅锡铁板。最外层采用倾斜的铝制结构,隔绝玻璃和不锈钢。

(责任编辑: chenqian

作品欣赏

欢迎关注视觉同盟微信公众号:
微信公众平台:搜索“vudn2004”或扫描下面二维码:
English | 关于我们 | 站点地图 | 联系热线 | 合作伙伴 | 艺术顾问 | 订阅 | 手机版
版权所有 © 2004-2026 视觉同盟 visionUnion.com)
Copyright © 2004-2026 VisionUnion.com Incorporated. All rights reserved
京ICP备09005192号
视觉同盟旗下子站:品牌专区 | 创意设计人才网 | 视觉同盟社区 | 视觉同盟论坛 | 英文版