行业关键字
建筑与环境建筑作品欣赏 → 正文
巴西皮拉西卡巴住宅
作者: Isay Weinfeld 来源: 视觉同盟 时间: 2010年10月11日

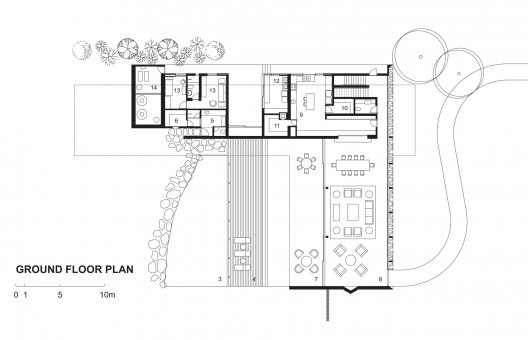
    这是一个位于巴西皮拉西卡巴城的住宅,离圣保罗有250千米的距离。它是为一个家庭准备的聚会地,家庭成员都分布各地。住宅包括三层,形似三个相互堆砌的并互相垂直的矩形结构,这样的安排使三层都能享受到室外花园的美好景色。

(责任编辑: chenqian

作品欣赏

欢迎关注视觉同盟微信公众号:
微信公众平台:搜索“vudn2004”或扫描下面二维码:
English | 关于我们 | 站点地图 | 联系热线 | 合作伙伴 | 艺术顾问 | 订阅 | 手机版
版权所有 © 2004-2026 视觉同盟 visionUnion.com)
Copyright © 2004-2026 VisionUnion.com Incorporated. All rights reserved
京ICP备09005192号
视觉同盟旗下子站:品牌专区 | 创意设计人才网 | 视觉同盟社区 | 视觉同盟论坛 | 英文版