行业关键字
建筑与环境建筑作品欣赏 → 正文
最懂得伪装的墓地
作者: Jordi Badia & Josep Val 来源: 视觉同盟 时间: 2008年7月23日

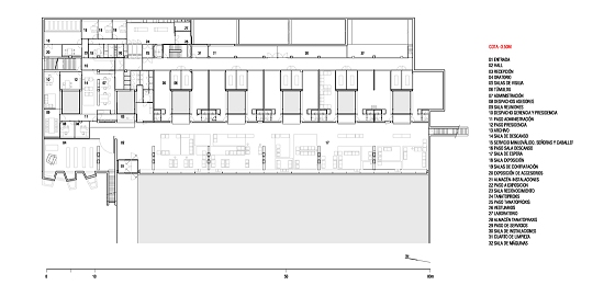
Tanatorio Municipal de Leon也许是世界上最懂得伪装的建筑。如果设计师不说,相信没有人会知道这座建筑实质作用相当于一个墓地。当然,它的伪装也是迫不得已的。因为它实在太接近居民区了。在外面看上过,这个建筑只是一个水池,而且映衬着天空十分好看。但到了里面,建筑就会给人一种安静的压迫感,似乎是在告诉你不要随便说话。

(责任编辑: 盛戎

作品欣赏

欢迎关注视觉同盟微信公众号:
微信公众平台:搜索“vudn2004”或扫描下面二维码:
English | 关于我们 | 站点地图 | 联系热线 | 合作伙伴 | 艺术顾问 | 订阅 | 手机版
版权所有 © 2004-2026 视觉同盟 visionUnion.com)
Copyright © 2004-2026 VisionUnion.com Incorporated. All rights reserved
京ICP备09005192号
视觉同盟旗下子站:品牌专区 | 创意设计人才网 | 视觉同盟社区 | 视觉同盟论坛 | 英文版