建筑首页
建筑资讯
作品欣赏
设计师与团队
理论资料
专题
行业关键字
工业
-
科技
-
教育
-
医疗
-
娱乐
-
体育
-
艺术
-
饮食
-
建筑
-
交通
-
旅游
-
财经
-
政府
-
媒体
-
公益
-
其他
说明
建筑与环境
→
建筑作品欣赏
→ 正文
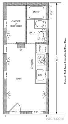
移动房屋设计
作者:
martin house-to-go
来源:
视觉同盟
时间:
2008年2月19日
移动的房屋设计,使用起来非常方便。多功能的房子修到了最高标准,经受住严峻的旅行,恶劣气候条件影响,不断使用及很少进行维修。
(责任编辑:
ll11
)
相关文章
·
西班牙Vibia Circus室内设计
·
阿根廷MENDOZA公共空间
·
黑山波德戈里察贸易展览和会议中心
·
俄罗斯Victor Timofeev“DEPOSITORY…
·
俄罗斯“Lucky 1905”建筑设计
·
格鲁吉亚RAKURS塔楼建筑设计
·
2025全国“好房子”设计大赛作品征集
·
西班牙索托格兰德95号别墅
·
10 Design | 重庆广域会所设计
设计竞赛
2025 INNODESIGN PRIZE全球创新设计大赛
2025中国设计智造大奖
2025年K-Design设计奖
2025年台湾国际学生设计竞赛(TISDC)
2026德国IF设计奖
2025日本G-Mark优良设计奖
作品欣赏
海报
LOGO
汽车
酷站
手机
家具
别墅
游戏
精彩推荐
不忘初心——北京科技大学覃京燕教授专访
北京科技大学工业设计系教授、计算机与通信工程学院博导、上海美术学院博士生导师、台湾华梵大学客座教授… [
详细
]
中国人民大学艺术学院陈炯教授专访
清华大学美术学院付志勇教授专访
四川美术学院谢亚平教授专访
北京邮电大学侯文军教授专访
华中科技大学黄朝晖教授专访
山东工艺美术学院顾群业教授专访
天津美术学院薛明教授专访
湖北美术学院凃志初教授专访
北京城市学院任丽凤教授专访
中央美术学院陈慰平老师专访
北京印刷学院许力老师专访
天津美术学院刘晓初老师专访
天津外国语大学王济军教授专访
北京交通大学张野副教授专访
中国传媒大学黄石副教授专访
欢迎关注视觉同盟微信公众号:
微信公众平台:搜索“vudn2004”或扫描下面二维码:
English
|
关于我们
|
站点地图
|
联系热线
|
合作伙伴
|
艺术顾问
|
订阅
|
手机版
版权所有 © 2004-2025 视觉同盟 visionUnion.com)
Copyright © 2004-2025 VisionUnion.com Incorporated. All rights reserved
京ICP备09005192号
视觉同盟旗下子站:
品牌专区
|
创意设计人才网
|
视觉同盟社区
|
视觉同盟论坛
|
英文版